- 住所
- 東京都 港区 芝 3-8-2
- 駅
-
芝公園駅 から 徒歩 2分
都営大江戸線 赤羽橋駅 から 徒歩 4分
- 駐車場
- 1 台
- サイズ
- 110.41 Sq. M. ( 1188.45 Sq. Ft.)
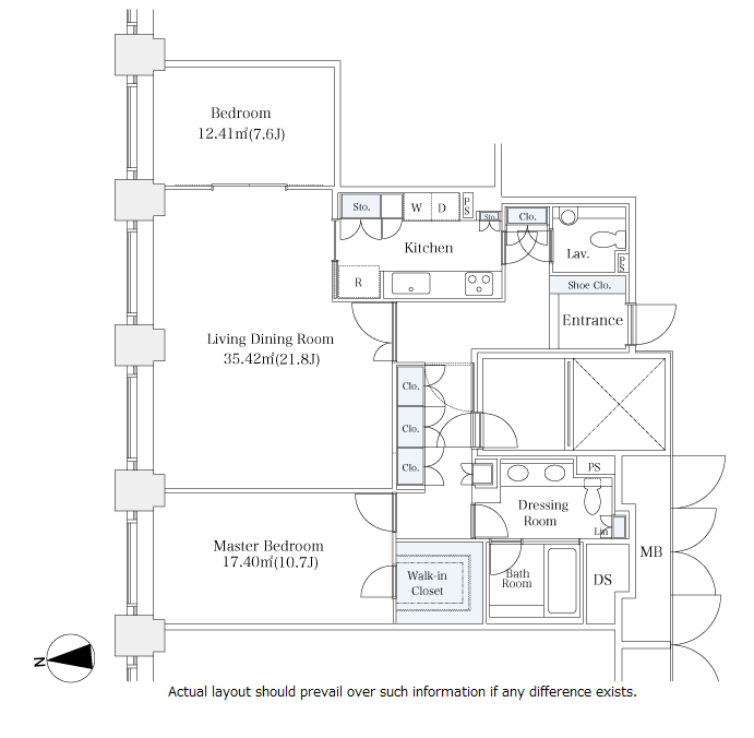
- 間取り
- + WIC
- ベッドルーム
-
2 BEDROOM(S)
- 建設
-
鉄骨造
| 賃貸料(月額) | 1,100,000 円 |
|---|---|
| 敷金 | 賃貸料 2 ヶ月 |
| ペット | Negotiable |
| 駐車場 | 近隣確保 |
|---|---|
| リース期間 | 2 年 |
その他
Fixed Term 2Y. Fitness Room. Concielge Service. Ask for Parking Availability. Large Sized Dog Nego. Musical Instrument Nego. Rent Guarantee Company/Household Goods Insurance Required.
-
オープンキッチン
-
フィットネスジム
-
テラスまたはバルコニー
-
コンシェルジュサービス
-
2つのトイレ
-
バス
-
床暖房
-
新耐震基準
-
ウッドフロア(LD)
-
セキュリティシステム
-
定期借家契約
-
楽器
-
20階以上
-
庭園
-
2浴(シャワーブースを含む)
ご成約の際には、仲介手数料として賃料の1ヶ月相当額(消費税別)を申し受けます。
※ は必須項目です

