- 住所
- 東京都 港区 南青山 1-3-1
- 駅
-
東京メトロ半蔵門線 青山一丁目駅 から 徒歩 1分
東京メトロ銀座線 青山一丁目駅 から 徒歩 1分
都営大江戸線 青山一丁目駅 から 徒歩 1分
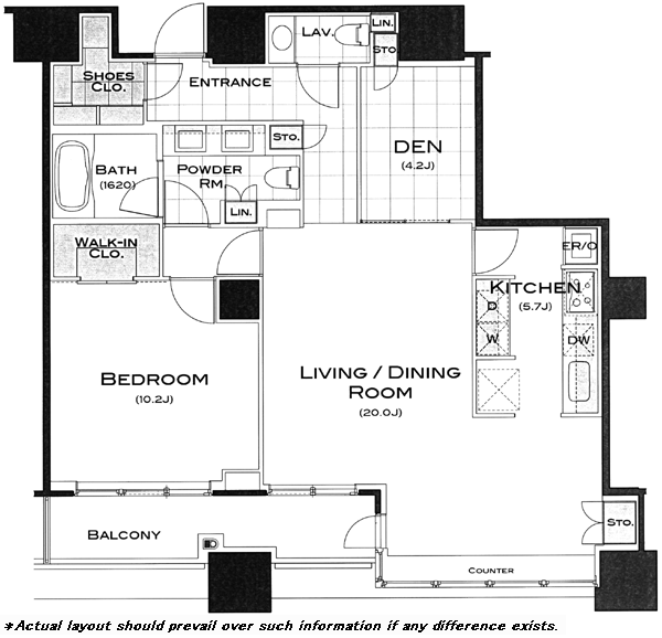
- 間取り
- + Den
- ベッドルーム
-
1 BEDROOM(S)
- 建設
-
RC
| 賃貸料(月額) | 888,000 円 |
|---|---|
| 敷金 | 賃貸料 4 ヶ月 |
| ペット | Negotiable |
| 駐車場 | 近隣確保 |
|---|---|
| 更新手数料 | 賃貸料 1 月分 |
| リース期間 | 2 年 |
その他
Fixed Term 2Y. 1Mo Re-contract Fee. Pet/Piano/Parking Nego. Concierge Service. Security System. BS/CS/CATV. Floor Heating. Rent Guarantee Company/Household Goods Insurance Required.
-
オープンキッチン
-
フィットネスジム
-
テラスまたはバルコニー
-
コンシェルジュサービス
-
2つのトイレ
-
バス
-
床暖房
-
新耐震基準
-
ウッドフロア(LD)
-
セキュリティシステム
-
定期借家契約
-
楽器
-
20階以上
-
庭園
-
2浴(シャワーブースを含む)
ご成約の際には、仲介手数料として賃料の1ヶ月相当額(消費税別)を申し受けます。
※ は必須項目です

