- 住所
- 東京都 港区 元麻布 3-7-10
- 駅
-
東京メトロ日比谷線 六本木駅 から 徒歩 10分
都営大江戸線 麻布十番駅 から 徒歩 8分
- 駐車場
- 1 台
- サイズ
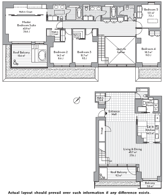
- 252.1 Sq. M. ( 2713.60 Sq. Ft.)
- 間取り
- + Trunk Room
- ベッドルーム
-
5 BEDROOM(S)
- 建設
-
RC
| 賃貸料(月額) | 3,100,000 円 |
|---|---|
| 敷金 | 賃貸料 4 ヶ月 |
| ペット | Negotiable |
| 駐車場 | 1台につき 0 円(税込)/月 |
|---|---|
| リース期間 | 2 年 |
その他
Fixed Term 2Y. Penthouse/Maisonnette/Corner Unit. Spacious Private Terraces with Jacuzzi on Upper Level. 5.3m Ceiling in Living Room. Heated Bathroom and Kitchen Floors. Household Goods Insurance.
-
オープンキッチン
-
フィットネスジム
-
テラスまたはバルコニー
-
コンシェルジュサービス
-
2つのトイレ
-
バス
-
床暖房
-
新耐震基準
-
ウッドフロア(LD)
-
セキュリティシステム
-
定期借家契約
-
楽器
-
20階以上
-
庭園
-
2浴(シャワーブースを含む)
ご成約の際には、仲介手数料として賃料の1ヶ月相当額(消費税別)を申し受けます。
※ は必須項目です
