- 住所
- 東京都 千代田区 平河町 2-16-2
- 駅
-
東京メトロ有楽町線 永田町駅 から 徒歩 1分
東京メトロ銀座線 赤坂見附駅 から 徒歩 6分
- 駐車場
- 1 台
- サイズ
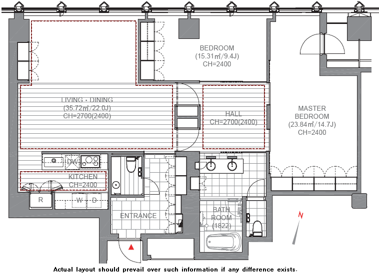
- 128.96 Sq. M. ( 1388.13 Sq. Ft.)
- ベッドルーム
-
2 BEDROOM(S)
- 建設
-
鉄骨造
| 賃貸料(月額) | 1,020,000 円 |
|---|---|
| 敷金 | 賃貸料 4 ヶ月 |
| ペット | Negotiable |
| 駐車場 | 近隣確保 |
|---|---|
| リース期間 | 3 年 |
その他
Fixed Term 3Y. HILLS SPA. Pets Nego (Small Dog or CatUp to 2). Ask for Parking and Trunk Room Availability. BBQ Space. Meeting Room. Sky Lounge. View Lounge. Community Room. Sky Deck / Roof Garden. Floor Heating.
-
オープンキッチン
-
フィットネスジム
-
テラスまたはバルコニー
-
コンシェルジュサービス
-
2つのトイレ
-
バス
-
床暖房
-
新耐震基準
-
ウッドフロア(LD)
-
セキュリティシステム
-
定期借家契約
-
楽器
-
20階以上
-
庭園
-
2浴(シャワーブースを含む)
ご成約の際には、仲介手数料として賃料の1ヶ月相当額(消費税別)を申し受けます。
※ は必須項目です
