Apartment
- 住所
- 東京都 新宿区 西五軒町 12-1
- 駅
-
東京メトロ有楽町線 江戸川橋駅 から 徒歩 4分
東京メトロ東西線 神楽坂駅 から 徒歩 8分
- 駐車場
- 1 台
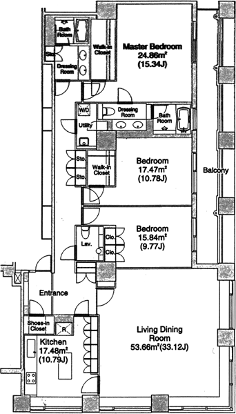
- サイズ
- 190.47 Sq. M. ( 2050.22 Sq. Ft.)
- ベッドルーム
-
3 BEDROOM(S)
- 建設
-
SRC
条件
| 賃貸料(月額) | 1,480,000 円 |
|---|---|
| 敷金 | 賃貸料 2 ヶ月 |
| ペット | Negotiable |
| 駐車場 | 近隣確保 |
|---|---|
| リース期間 | 2 年 |
その他
Fixed Term 2Y. Corner Unit. Gym. Pet Nego(+1Mo Deposit). Rent Guarantee Company/ Household Goods Insurance. Concierge Service.
Features
-
オープンキッチン
-
フィットネスジム
-
テラスまたはバルコニー
-
コンシェルジュサービス
-
2つのトイレ
-
バス
-
床暖房
-
新耐震基準
-
ウッドフロア(LD)
-
セキュリティシステム
-
定期借家契約
-
楽器
-
20階以上
-
庭園
-
2浴(シャワーブースを含む)
ご成約の際には、仲介手数料として賃料の1ヶ月相当額(消費税別)を申し受けます。
こちらの物件について問い合わせる
※ は必須項目です

