- 住所
- 東京都 港区 赤坂 2-17-1
- 駅
-
東京メトロ千代田線 赤坂駅 から 徒歩 5分
東京メトロ銀座線 溜池山王駅 から 徒歩 5分
東京メトロ丸ノ内線 国会議事堂前駅 から 徒歩 10分
- 駐車場
- 1 台
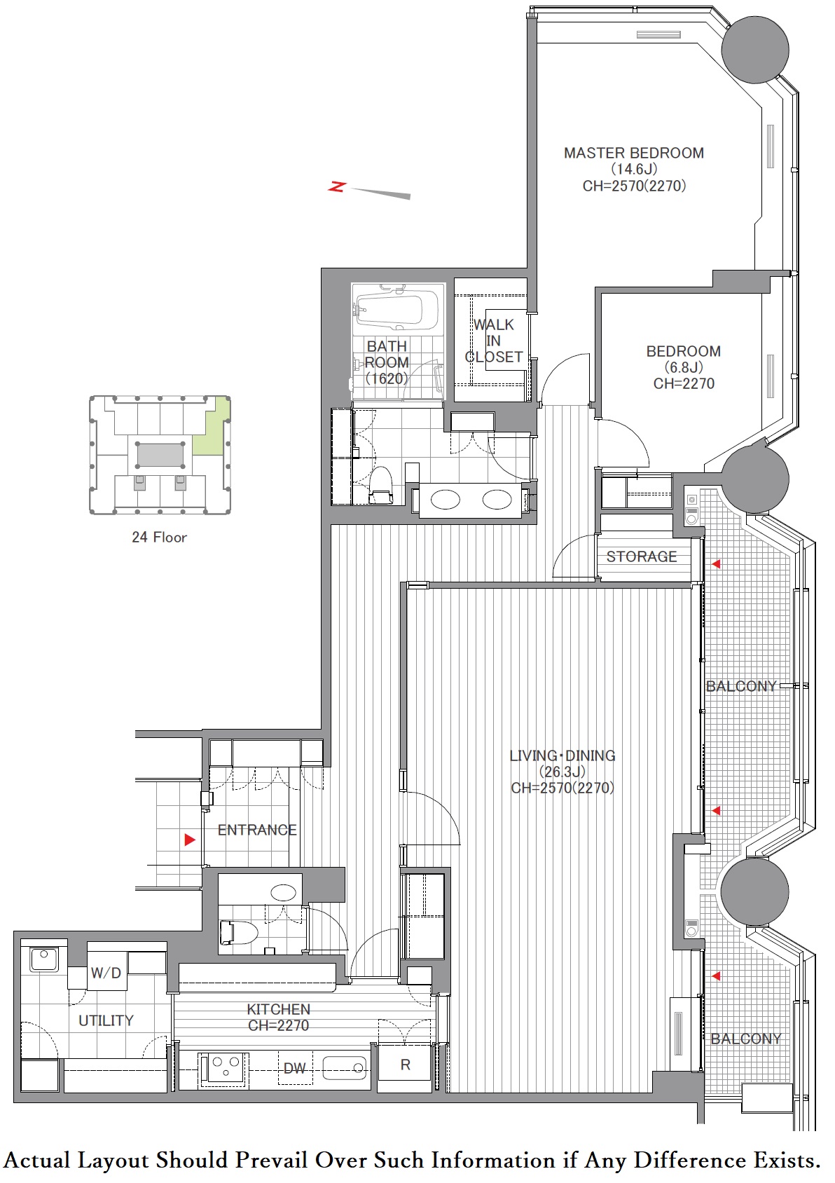
- サイズ
- 142.38 Sq. M. ( 1532.58 Sq. Ft.)
- ベッドルーム
-
2 BEDROOM(S)
- 建設
-
鉄骨造
| 賃貸料(月額) | 1,040,000 円 |
|---|---|
| 敷金 | 賃貸料 4 ヶ月 |
| ペット | Negotiable |
| 駐車場 | 1台につき 55,000 円(税込)/月 |
|---|---|
| リース期間 | 3 年 |
その他
Fixed Term 3Y. HILLS SPA Access. Fitness Gym (In-house) Pets Nego (Small Dog or Cat Up to 2). Please Ask for Parking and Trunk Room Availability. Roof Garden. BBQ Area.
-
オープンキッチン
-
フィットネスジム
-
テラスまたはバルコニー
-
コンシェルジュサービス
-
2つのトイレ
-
バス
-
床暖房
-
新耐震基準
-
ウッドフロア(LD)
-
セキュリティシステム
-
定期借家契約
-
楽器
-
20階以上
-
庭園
-
2浴(シャワーブースを含む)
ご成約の際には、仲介手数料として賃料の1ヶ月相当額(消費税別)を申し受けます。
※ は必須項目です

