- 住所
- 東京都 港区 六本木 1-9-35
- 駅
-
東京メトロ南北線 六本木一丁目駅 から 徒歩 6分
東京メトロ日比谷線 神谷町駅 から 徒歩 5分
東京メトロ銀座線 溜池山王駅 から 徒歩 13分
- 駐車場
- 1 台
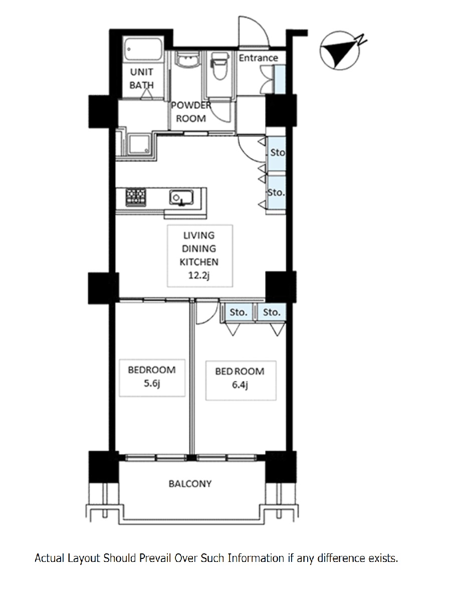
- サイズ
- 57.93 Sq. M. ( 623.56 Sq. Ft.)
- ベッドルーム
-
2 BEDROOM(S)
- 建設
-
RC
| 賃貸料(月額) | 399,000 円 |
|---|---|
| 敷金 | 賃貸料 2 ヶ月 |
| ペット | No Pets |
| 駐車場 | 近隣確保 |
|---|---|
| リース期間 | 3 年 |
その他
Fixed Term 3Y. Flat Parking (ask for details). Rent Guarantee Company/Household Goods Insurance Required.
-
オープンキッチン
-
フィットネスジム
-
テラスまたはバルコニー
-
コンシェルジュサービス
-
2つのトイレ
-
バス
-
床暖房
-
新耐震基準
-
ウッドフロア(LD)
-
セキュリティシステム
-
定期借家契約
-
楽器
-
20階以上
-
庭園
-
2浴(シャワーブースを含む)
ご成約の際には、仲介手数料として賃料の1ヶ月相当額(消費税別)を申し受けます。
※ は必須項目です

