- 住所
- 東京都 港区 白金 1-17-1
- 駅
-
白金高輪駅 から 徒歩 1分
東京メトロ南北線 白金高輪駅 から 徒歩 1分
- 駐車場
- 1 台
- サイズ
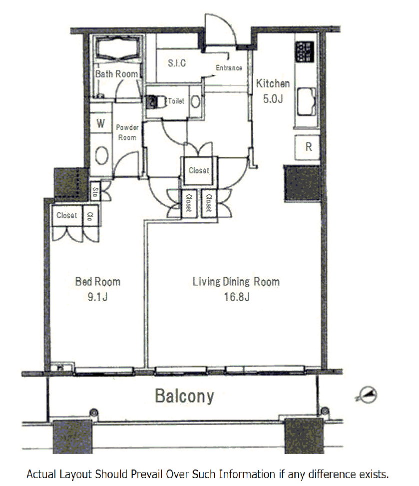
- 71.09 Sq. M. ( 765.21 Sq. Ft.)
- ベッドルーム
-
1 BEDROOM(S)
- 建設
-
RC
| 賃貸料(月額) | 480,000 円 |
|---|---|
| 管理手数料 | 50,000 円 / 月 |
| 敷金 | 賃貸料 2 ヶ月 |
| ペット | Negotiable |
| 駐車場 | 1台につき 55,000 円(税込)/月 |
|---|---|
| リース期間 | 2 年 |
その他
Fixed Term 2Y. Re-contract Fee 1Mo. Music Instruments Nego/ /Concierge Service/Parcel Lockers. Small Dog or Cat Nego (+1 Mo Deposit -1Mo Deposit Upon Leaving).Mgmt Fee 50000yen/M. Rent Guarantee Company/Household Goods Insurance Required.
-
オープンキッチン
-
フィットネスジム
-
テラスまたはバルコニー
-
コンシェルジュサービス
-
2つのトイレ
-
バス
-
床暖房
-
新耐震基準
-
ウッドフロア(LD)
-
セキュリティシステム
-
定期借家契約
-
楽器
-
20階以上
-
庭園
-
2浴(シャワーブースを含む)
ご成約の際には、仲介手数料として賃料の1ヶ月相当額(消費税別)を申し受けます。
※ は必須項目です

