- 住所
- 東京都 港区 愛宕 2-3-1
- 駅
-
東京メトロ日比谷線 神谷町駅 から 徒歩 5分
御成門駅 から 徒歩 4分
東京メトロ銀座線 虎ノ門駅 から 徒歩 10分
- 駐車場
- 1 台
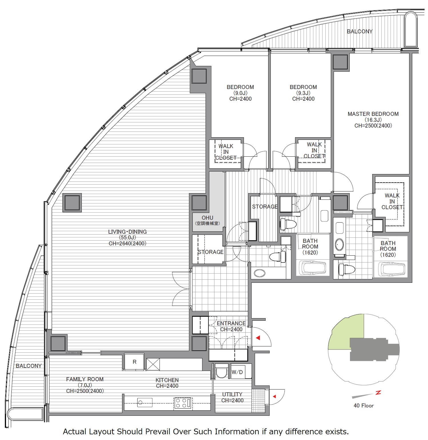
- サイズ
- 238.48 Sq. M. ( 2567.00 Sq. Ft.)
- 間取り
- + Family Room
- ベッドルーム
-
3 BEDROOM(S)
- 建設
-
SRC
| 賃貸料(月額) | 2,540,000 円 |
|---|---|
| 敷金 | 賃貸料 4 ヶ月 |
| ペット | Negotiable |
| 駐車場 | 1台につき 55,000 円(税込)/月 |
|---|---|
| リース期間 | 3 年 |
その他
Fixed Term 3Y. Spa (Indoor Pool and Gym). Pets Nego (Up to Large Sized Dog or Cat). Please Ask for Parking and Trunk Room Availability. Guest Room. Health Consultation Room. Sky Deck / Roof Deck.
-
オープンキッチン
-
フィットネスジム
-
テラスまたはバルコニー
-
コンシェルジュサービス
-
2つのトイレ
-
バス
-
床暖房
-
新耐震基準
-
ウッドフロア(LD)
-
セキュリティシステム
-
定期借家契約
-
楽器
-
20階以上
-
庭園
-
2浴(シャワーブースを含む)
ご成約の際には、仲介手数料として賃料の1ヶ月相当額(消費税別)を申し受けます。
※ は必須項目です

