- Address
- 1-11-3 Tsukuda Chuo-ku Tokyo
- Stations
-
14 min . walk to Echujima Sta. on the Keiyo.
6 min . walk to Tsukishima Sta. on the Yurakucho.
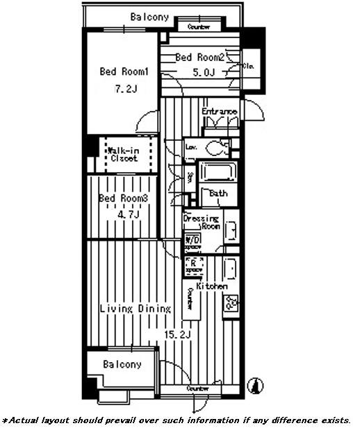
- Size
- 84.35 Sq. M. ( 907.94 Sq. Ft.)
- Bedroom(s)
-
3 Bedroom(s)
- Construction
-
| Rent | 448,000 JPY |
|---|---|
| Deposit | 1 months rent |
| Key Money | 1 month rent |
| Parking Space | Ask for Details |
|---|---|
| Renewal Fee | Equivalent to 1 month of new rent |
| Lease Term | Fixed 2 years |
Others
Ordinary Lease 2Y. 1Mo Renewal Fee. Reception. Piano Nego. ACs. Dishwasher. Cooking Stove. Auto-lock System. Parcel Lockers. New Cylinder & Key Installation Fee 16500yen. Rent Guarantee Company/Household Goods Insurance.
-
Open Kitchen
-
Fitness Gym
-
Terrace or balcony
-
Concierge Service
-
2-Toilets
-
Japanese Bath
-
Floor Heating
-
New Earthquake Resistance Standards
-
Wooden Floor(LD)
-
Security System
-
Fixed Term Lease
-
Music Instruments
-
Above 20th Floor
-
Garden
-
2-Baths(including shower Booth)
A one month commission(plus consumption tax) will be charged as an agent fee upon concluding a lease agreement.
※ means required item

