Kaki House
1,000,000 JPY
Built: 200811
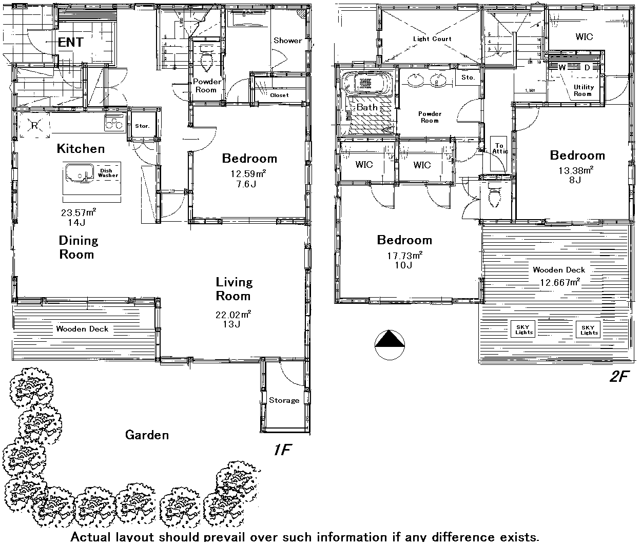
間取り図
Address
2-16-25 Hiroo Shibuya-ku Tokyo
Stations

9 min . walk to Hiroo Sta. on the Hibiya.

Size
160 Sq. M. ( 1722.24 Sq. Ft.)
Layout
+ Wooden Decks + Garden + Terrace + Attic Storage
Bedroom(s)
3 Bedroom(s)
Construction

Conditions
Rent 1,000,000 JPY
Deposit 4 months rent
Key Money 1 month rent
Pet Negotiable
Parking Space None
Lease Term Fixed 2 years

Others

Fixed Term 2Y. Island Kitchen! All Wooden Floor (Cherry). Nice Garden & Terrace. Pet/Piano Negotiable. Household Goods Insurance Required.

Features
  • Open Kitchen
  • Fitness Gym
  • Terrace or balcony
  • Concierge Service
  • 2-Toilets
  • Japanese Bath
  • Floor Heating
  • New Earthquake Resistance Standards
  • Wooden Floor(LD)
  • Security System
  • Fixed Term Lease
  • Music Instruments
  • Above 20th Floor
  • Garden
  • 2-Baths(including shower Booth)

A one month commission(plus consumption tax) will be charged as an agent fee upon concluding a lease agreement.

Inquire about this property

means required item

Salutation:
First Name: Last Name:
Telephone:
Email Address:
Property Location:
Estimated Budget / Monthly Rental:
Number of Bedrooms:
Additional Information:
SIMILAR PROPERTIES